店舗からのお知らせ

介護事業サービスの併設および改修工事におけるレイアウト変更等について

2025.12.19



平素よりアクトスWill_G中津川店をご愛顧いただきまして誠にありがとうございます。

さて、私ども株式会社アクトスは運動を介しまして皆様の健康づくりに携わらせていただいておりますが、更にそのサービスの拡大を目指すべく、このたび岐阜県・中津川市より事業指定(予定)を受け、当店におきまして介護・介護予防事業サービスの併設をさせていただく運びとなりましたので、ご案内申し上げます。

また、これにより施設改修およびレイアウトの変更、臨時休館を伴いますので、下記の通りご案内申し上げます。

皆さまにはご迷惑やご不便をお掛けいたしますが、何卒、ご理解とご協力を賜わりますようよろしくお願い申し上げます。


1.併設する介護事業(サービス)

① 名称「運動特化型デイサービス アクトス リ・バースジム中津川 」
※要支援・要介護の方を対象として、運動のご案内に特化した支援サービスにより運動器機能の保持・増進を目指すものです。

② サービス開始日(予定) 2026年2月2日(月)~

③ サービス提供時間(実施時間)
毎週 月曜日~金曜日 午前9時~午後0時05分 (木曜日も実施予定)
サービス提供時間中におきましては、機能訓練等のスペースはご利用いただくことが出来ません。
実施時間外及びデイサービス利用者がご不在の場合は、機能訓練スペースへの立ち入りやご利用がいただけます。


改修工事について

①工事(休館)期間
令和8年1月19日(月)~令和8年1月25日(日)まで 《7営業日》
※工事期間中は当店のご利用が出来ません。

1月26日(月)8時より営業を再開いたします。

②改修工事内容
トイレの新設、更衣室の移設、一部衝立等の撤去など。

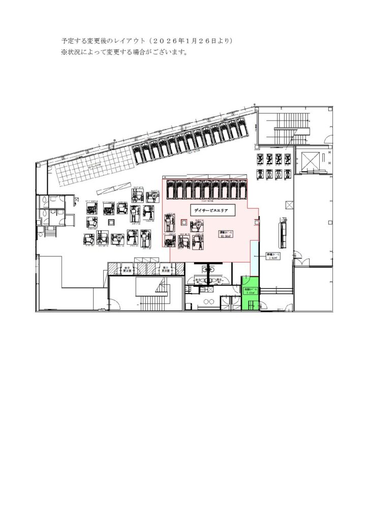
3.店内機器レイアウトの変更

①変更日 2026年1月26日(月)~
※下記のレイアウト図をご参照くださいませ。

4.工事期間中の会費取り扱いについて

お近くのアクトス店舗を利用可能とさせていただく為、割引等はございません。 
1月26日(月)~1月31日(土)の期間中にご来館の会員様にその場でバロー商品券1,000円分贈呈いたします。
※お一人様1回限り、スタッフ在籍時間に限ります。

5.休館中の近隣店舗利用について

①下記の店舗が無料(会員証提示)でご利用いただけます。

スポーツクラブアクトス恵那店
〒509-7205
岐阜県恵那市長島町中野1丁目7-1
TEL:0573-26-5301

※上記店舗は室内用シューズをご準備ください。
※全施設(スタジオ、プールなど)利用可能です。
※木曜日は休館日です。営業時間などの詳細は店舗HPをご確認ください。

①上記を除くアクトス(総合店)店舗をご利用の場合は他店舗利用料【1,650円(税込)】が必要です。
・Will_G店舗は相互利用(無料)が可能です。

店舗ページへ戻る